Sanremo, Wohnung mit Garten
                            
							
							Objekt-ID: 13901
                            	
Sanremo, Via Duca degli Abruzzi, eine der ruhigsten Wohngegenden der Stadt, in günstiger Nähe zum Meer und den wichtigsten Dienstleistungen, bieten wir eine elegante Wohnung mit großem privaten Garten zum Verkauf an.
Das Anwesen befindet sich in einem eleganten Gebäude, das von einem großen umzäunten Gelände umgeben ist, und bietet Privatsphäre, Sicherheit und Ruhe. Damit ist es eine ideale Umgebung für diejenigen, die auf dem Land leben möchten, ohne auf die Nähe zum Zentrum zu verzichten.
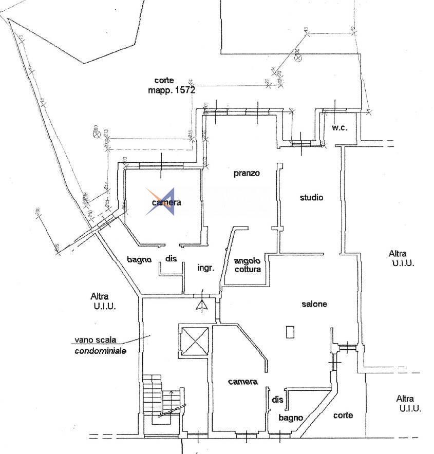
Die 180 Quadratmeter große Wohnung im Erdgeschoss verfügt über einen bis ins kleinste Detail gepflegten, 250 Quadratmeter großen Privatgarten mit Pavillon, Nachtbeleuchtung, Steinboden und automatischer Bewässerung.
Es besteht aus zwei miteinander verbundenen Wohneinheiten, jede mit eigenem Eingang.
Die erste Einheit mit 115 m2 umfasst ein helles offenes Wohnzimmer mit Esszimmer und offener Küche, zwei gut beleuchtete Doppelschlafzimmer, zwei Badezimmer mit Fenstern und exklusiven Zugang zum Garten.
Die zweite, eine 65 m2 große Zweizimmerwohnung, bietet einen großen Wohnbereich mit offener Küche, ein Schlafzimmer mit Doppelbett, ein Badezimmer mit Fenster und einen privaten Innenhof.
Das Anwesen ist in ausgezeichnetem Zustand, teilweise möbliert und mit einer unabhängigen Methangasheizung ausgestattet.
Außerdem sind zwei überdachte Stellplätze in der Garage und zwei Kellerräume vorhanden.
Perfekt als Erstwohnsitz, Zweifamilienlösung oder Kapitalanlage.
Es besteht auch die Möglichkeit, nur die größte Wohnung zum Preis von 500.000 Euro zu kaufen.
Für weitere Einzelheiten kontaktieren Sie uns bitte.
                                
                                
									
                            
		
		
		
		
		
		
		
		
		
		
		
		
		
		
		
		
		
		
		
		
		
		
		                        
                    Sanremo, Via Duca degli Abruzzi, eine der ruhigsten Wohngegenden der Stadt, in günstiger Nähe zum Meer und den wichtigsten Dienstleistungen, bieten wir eine elegante Wohnung mit großem privaten Garten zum Verkauf an.
Das Anwesen befindet sich in einem eleganten Gebäude, das von einem großen umzäunten Gelände umgeben ist, und bietet Privatsphäre, Sicherheit und Ruhe. Damit ist es eine ideale Umgebung für diejenigen, die auf dem Land leben möchten, ohne auf die Nähe zum Zentrum zu verzichten.
Die 180 Quadratmeter große Wohnung im Erdgeschoss verfügt über einen bis ins kleinste Detail gepflegten, 250 Quadratmeter großen Privatgarten mit Pavillon, Nachtbeleuchtung, Steinboden und automatischer Bewässerung.
Es besteht aus zwei miteinander verbundenen Wohneinheiten, jede mit eigenem Eingang.
Die erste Einheit mit 115 m2 umfasst ein helles offenes Wohnzimmer mit Esszimmer und offener Küche, zwei gut beleuchtete Doppelschlafzimmer, zwei Badezimmer mit Fenstern und exklusiven Zugang zum Garten.
Die zweite, eine 65 m2 große Zweizimmerwohnung, bietet einen großen Wohnbereich mit offener Küche, ein Schlafzimmer mit Doppelbett, ein Badezimmer mit Fenster und einen privaten Innenhof.
Das Anwesen ist in ausgezeichnetem Zustand, teilweise möbliert und mit einer unabhängigen Methangasheizung ausgestattet.
Außerdem sind zwei überdachte Stellplätze in der Garage und zwei Kellerräume vorhanden.
Perfekt als Erstwohnsitz, Zweifamilienlösung oder Kapitalanlage.
Es besteht auch die Möglichkeit, nur die größte Wohnung zum Preis von 500.000 Euro zu kaufen.
Für weitere Einzelheiten kontaktieren Sie uns bitte.
- Bezug: 13901
- Preis: € 750.000
- Heizung: autonom
- Auftauchen: qm 185
- Räume: 3
- Einheimische: 5
- Entfernung vom Meer: Meter 500
- Boden: Erdgeschoss
- Gesamtgeschosse: 3
- Eigentumswohnungsgebühren: 160 €/Monat
- Schlafzimmer: 3
- QM: 185
- Badezimmer: 3
€ 750.000
																					
                         Aquamarina Real Estate Agency
                            via Vittorio Emanuele, 302
                            
                            Aquamarina Real Estate Agency
                            via Vittorio Emanuele, 30218012 Bordighera (IM)
Telefon: +39 0184 26.16.87
Mobiltelefon: +39 328 83.65.167
E-mail: info@aquamarina.email ANRUFEN TERMIN VEREINBAREN
 
                     
                         
                         
									 
									 
									 
									 
									 
									 
									 
									 
									 
									 
									 
									 
									 
									 
									 
									 
									 
									 
									 
									 
									 
									 
									 
									 
									 
									 
									 
									 
									 
									 
									 
									 
									 
									 
									 
									 
									 
									 
									 
									 
									 
									 
									 
									 
									 
									 
									 
									 
									 
									 
									 
									 
									 
									 
									 
									 
									 
									


