Sanremo, Penthouse mit Meerblick
Objekt-ID: 13800
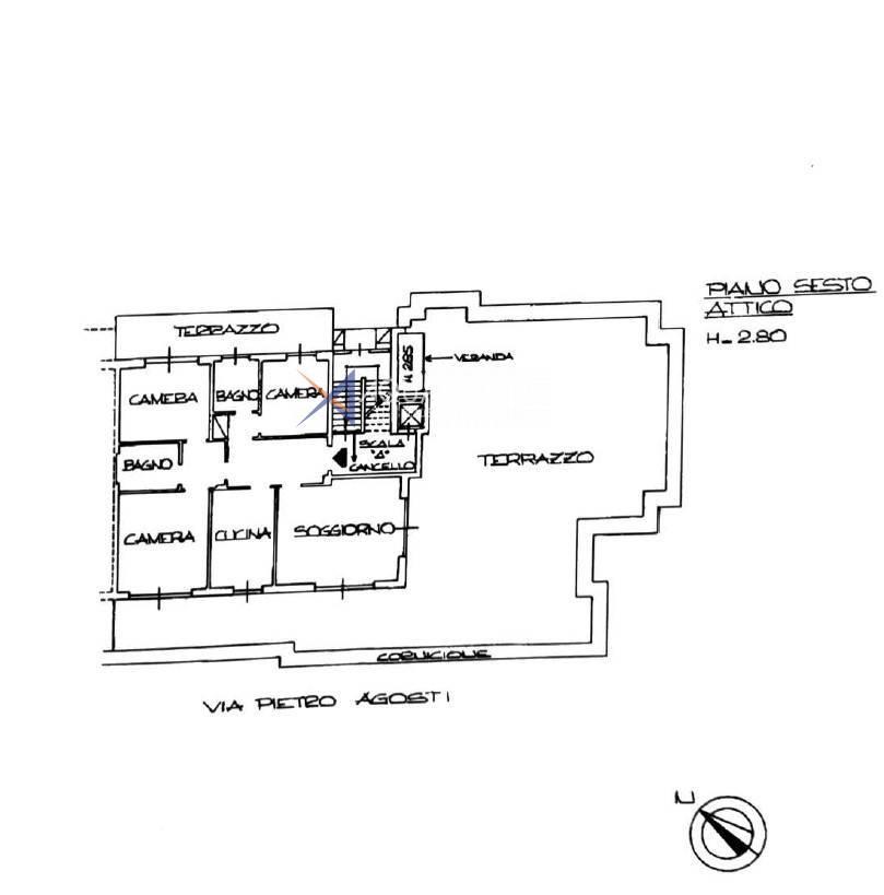
Sanremo, nur wenige Minuten vom Stadtzentrum und den Stränden entfernt, bieten wir ein geräumiges Penthouse mit einer herrlichen Terrasse mit Meerblick zum Verkauf an.
Die Immobilie, die im Originalzustand angeboten wird, besteht aus: Eingang, Flur, Wohnküche, Wohnzimmer, drei Schlafzimmern und zwei Bädern.
Die Immobilie wird durch eine große Terrasse von etwa 120 Quadratmetern mit einem herrlichen, freien Blick auf das Meer, zwei kleinere Balkone, einen Keller und eine geräumige Garage ergänzt.
Zentralheizung mit Ventilen, umwandelbar in eine autonome Heizung.
Sanremo, nur wenige Minuten vom Stadtzentrum und den Stränden entfernt, bieten wir ein geräumiges Penthouse mit einer herrlichen Terrasse mit Meerblick zum Verkauf an.
Die Immobilie, die im Originalzustand angeboten wird, besteht aus: Eingang, Flur, Wohnküche, Wohnzimmer, drei Schlafzimmern und zwei Bädern.
Die Immobilie wird durch eine große Terrasse von etwa 120 Quadratmetern mit einem herrlichen, freien Blick auf das Meer, zwei kleinere Balkone, einen Keller und eine geräumige Garage ergänzt.
Zentralheizung mit Ventilen, umwandelbar in eine autonome Heizung.
- Bezug: 13800
- Preis: € 400.000
- Meerblick
- Heizung: zentralisiert
- Auftauchen: qm 105
- Räume: 3
- Einheimische: 4
- Entfernung vom Meer: Meter 1000
- Boden: Dachboden
- Gesamtgeschosse: 5
- Eigentumswohnungsgebühren: 210 €/Monat
- Schlafzimmer: 3
- QM: 105
- Badezimmer: 2
€ 400.000
Aquamarina Real Estate Agency
via Vittorio Emanuele, 30218012 Bordighera (IM)
Telefon: +39 0184 26.16.87
Mobiltelefon: +39 328 83.65.167
E-mail: info@aquamarina.email ANRUFEN TERMIN VEREINBAREN



