Freistehendes Haus mit Meerblick in San Lorenzo al Mare
Objekt-ID: 14148
Reduzierter Preis
In der herrlichen Umgebung von San Lorenzo al Mare, in sonniger und ruhiger Lage, bieten wir ein geräumiges und helles freistehendes Haus mit 165 m² Wohnfläche und einem traumhaften Meerblick zum Verkauf an.
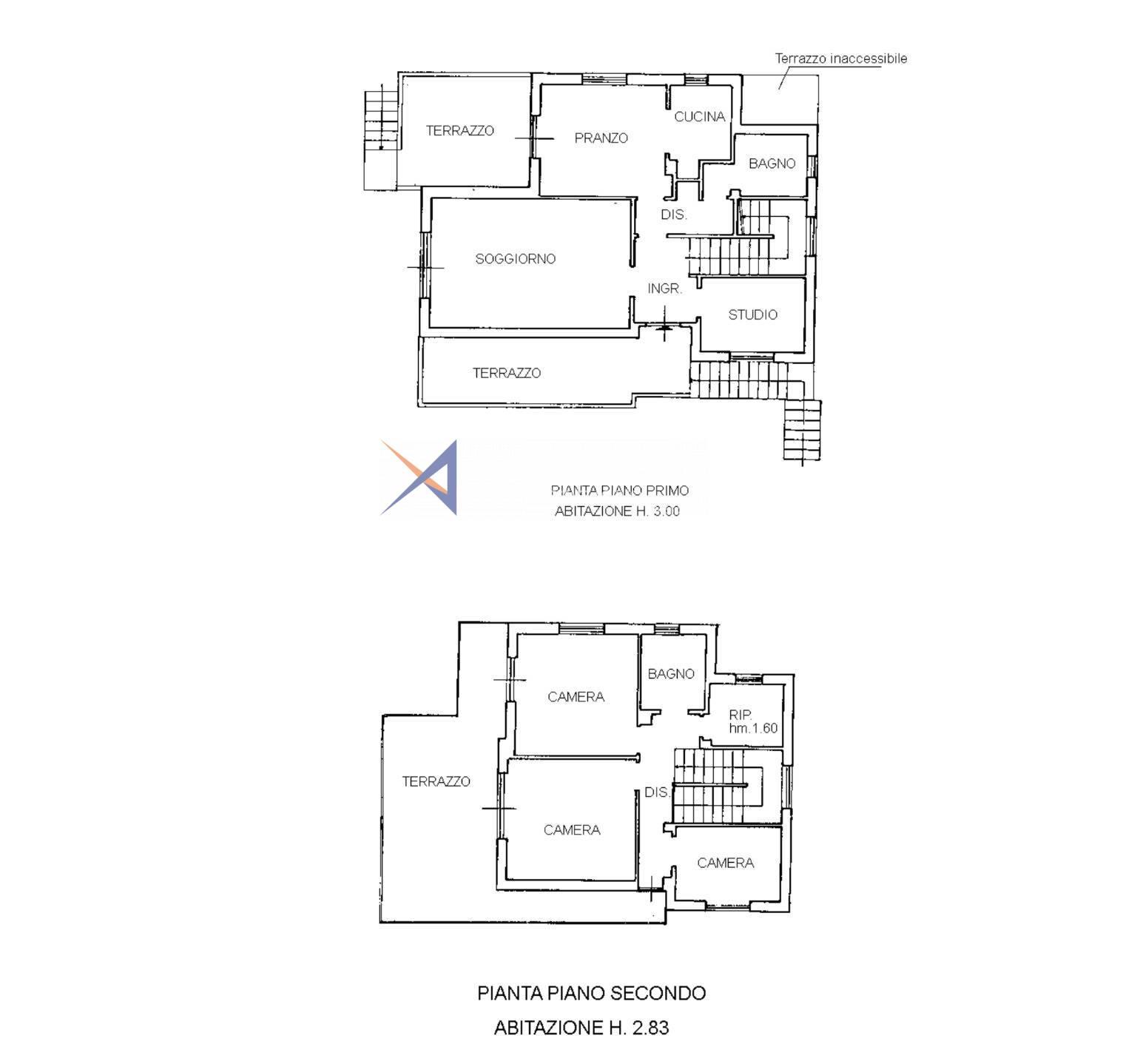
Das Haus öffnet sich zu einem komfortablen Flur, der zum Wohnbereich mit offener Küche führt, einem einladenden und hellen Raum mit direktem Zugang zur ersten Panoramaterrasse nach Süden, die sich ideal eignet, um Momente der Entspannung mit Blick auf das Meer zu genießen.
Auf der gleichen Ebene befinden sich ein geräumiges, ebenfalls sehr helles Doppelzimmer, ein Einzelzimmer und ein Badezimmer mit Fenster.
Im Obergeschoss, das über eine bequeme Innentreppe erreichbar ist, befindet sich der Schlafbereich, bestehend aus einem zweiten großzügig geschnittenen Doppelzimmer mit Zugang zur Terrasse mit Panoramablick auf das Meer, zwei weiteren Schlafzimmern und einem zweiten Badezimmer mit Fenster.
Das Anwesen ist von einem rund 1.000 Quadratmeter großen Garten umgeben, einer Grünfläche, die Privatsphäre garantiert und vielfältige Nutzungsmöglichkeiten bietet.
Zum Anwesen gehören ein großes 85 m² Lagerhaus und eine 20 m² große Garage.
Eine ideale Lösung für alle, die in privater Atmosphäre und Ruhe leben möchten, ohne auf den Komfort von Dienstleistungen und die Schönheit des Meeres verzichten zu müssen.
In der herrlichen Umgebung von San Lorenzo al Mare, in sonniger und ruhiger Lage, bieten wir ein geräumiges und helles freistehendes Haus mit 165 m² Wohnfläche und einem traumhaften Meerblick zum Verkauf an.
Das Haus öffnet sich zu einem komfortablen Flur, der zum Wohnbereich mit offener Küche führt, einem einladenden und hellen Raum mit direktem Zugang zur ersten Panoramaterrasse nach Süden, die sich ideal eignet, um Momente der Entspannung mit Blick auf das Meer zu genießen.
Auf der gleichen Ebene befinden sich ein geräumiges, ebenfalls sehr helles Doppelzimmer, ein Einzelzimmer und ein Badezimmer mit Fenster.
Im Obergeschoss, das über eine bequeme Innentreppe erreichbar ist, befindet sich der Schlafbereich, bestehend aus einem zweiten großzügig geschnittenen Doppelzimmer mit Zugang zur Terrasse mit Panoramablick auf das Meer, zwei weiteren Schlafzimmern und einem zweiten Badezimmer mit Fenster.
Das Anwesen ist von einem rund 1.000 Quadratmeter großen Garten umgeben, einer Grünfläche, die Privatsphäre garantiert und vielfältige Nutzungsmöglichkeiten bietet.
Zum Anwesen gehören ein großes 85 m² Lagerhaus und eine 20 m² große Garage.
Eine ideale Lösung für alle, die in privater Atmosphäre und Ruhe leben möchten, ohne auf den Komfort von Dienstleistungen und die Schönheit des Meeres verzichten zu müssen.
- Bezug: 14148
- Preis: € 435.000
- Meerblick
- Heizung: autonom
- Auftauchen: qm 165
- Räume: 6
- Einheimische: 7
- Boden: Auf zwei Ebenen
- Schlafzimmer: 6
- QM: 165
- Badezimmer: 2
€ 435.000
Aquamarina Real Estate Agency
via Vittorio Emanuele, 30218012 Bordighera (IM)
Telefon: +39 0184 26.16.87
Mobiltelefon: +39 328 83.65.167
E-mail: info@aquamarina.email ANRUFEN TERMIN VEREINBAREN
