Einfamilienhaus mit Garten
Objekt-ID: 13926
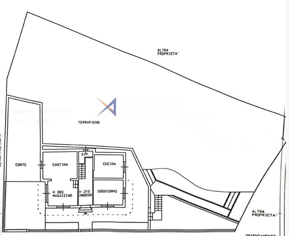
Im Herzen des charmanten Dorfes Poggio, nur 3 km von den bezaubernden Stränden und dem bequemen Rad-/Fußgängerweg entfernt, bieten wir eine freistehende Villa mit 166 m2 begehbarer Fläche zum Verkauf an, die auf vier Seiten frei ist und Privatsphäre und Helligkeit in jedem Raum bietet.
Der Eingang im Erdgeschoss empfängt Sie mit einem großzügigen, perfekt beleuchteten Wohnbereich und einer besonders funktionalen und luftigen Küche.
Über eine bequeme Innentreppe gelangt man in den Schlafbereich, wo sich vier großzügig bemessene Schlafzimmer befinden, die alle auf Komfort und Privatsphäre ausgelegt sind.
Der Schlafbereich wird durch ein Badezimmer mit Fenster ergänzt
Vom oberen Stockwerk aus gelangt man auf einen sehr bewohnbaren Balkon, eine Ecke der Ruhe, die einen freien Blick auf den privaten Garten und einen bezaubernden Blick auf das Meer bietet, ein echtes Privileg.
Auf der obersten Ebene, die über eine Außentreppe erreichbar ist, befindet sich eine Terrasse mit einem Panoramablick und einer sehr eindrucksvollen Aussicht, auf der Sie absolute Ruhe genießen können.
Das Anwesen erstreckt sich über ein 600 m2 großes Grundstück, das mit Obstbäumen bepflanzt ist, die für einen Hauch natürlicher Schönheit und Ruhe sorgen.
Eine große Garage und die Möglichkeit, bis zu vier Fahrzeuge im Hof zu parken, der über ein Tor leicht zugänglich ist, runden das Anwesen ab und sorgen für Komfort und Zweckmäßigkeit im Alltag.
Eine Residenz, die Platz und eine privilegierte Lage vereint, perfekt für alle, die einen exklusiven Rückzugsort nur wenige Schritte vom Meer entfernt suchen.
Im Herzen des charmanten Dorfes Poggio, nur 3 km von den bezaubernden Stränden und dem bequemen Rad-/Fußgängerweg entfernt, bieten wir eine freistehende Villa mit 166 m2 begehbarer Fläche zum Verkauf an, die auf vier Seiten frei ist und Privatsphäre und Helligkeit in jedem Raum bietet.
Der Eingang im Erdgeschoss empfängt Sie mit einem großzügigen, perfekt beleuchteten Wohnbereich und einer besonders funktionalen und luftigen Küche.
Über eine bequeme Innentreppe gelangt man in den Schlafbereich, wo sich vier großzügig bemessene Schlafzimmer befinden, die alle auf Komfort und Privatsphäre ausgelegt sind.
Der Schlafbereich wird durch ein Badezimmer mit Fenster ergänzt
Vom oberen Stockwerk aus gelangt man auf einen sehr bewohnbaren Balkon, eine Ecke der Ruhe, die einen freien Blick auf den privaten Garten und einen bezaubernden Blick auf das Meer bietet, ein echtes Privileg.
Auf der obersten Ebene, die über eine Außentreppe erreichbar ist, befindet sich eine Terrasse mit einem Panoramablick und einer sehr eindrucksvollen Aussicht, auf der Sie absolute Ruhe genießen können.
Das Anwesen erstreckt sich über ein 600 m2 großes Grundstück, das mit Obstbäumen bepflanzt ist, die für einen Hauch natürlicher Schönheit und Ruhe sorgen.
Eine große Garage und die Möglichkeit, bis zu vier Fahrzeuge im Hof zu parken, der über ein Tor leicht zugänglich ist, runden das Anwesen ab und sorgen für Komfort und Zweckmäßigkeit im Alltag.
Eine Residenz, die Platz und eine privilegierte Lage vereint, perfekt für alle, die einen exklusiven Rückzugsort nur wenige Schritte vom Meer entfernt suchen.
- Schlafzimmer: 4
- QM: 190
- Badezimmer: 1
€ 390.000
Aquamarina Real Estate Agency
via Vittorio Emanuele, 30218012 Bordighera (IM)
Telefon: +39 0184 26.16.87
Mobiltelefon: +39 328 83.65.167
E-mail: info@aquamarina.email ANRUFEN TERMIN VEREINBAREN
