Objekt-ID: 13943
Reduzierter Preis
Ventimiglia, wir bieten ein wunderschönes Penthouse mit einer großen Terrasse von etwa 100 Quadratmetern zum Verkauf an, die einen bezaubernden Meerblick bietet, nur wenige Schritte von den Stränden, der Promenade und dem Radweg entfernt.
Diese Immobilie kann als einmalige Gelegenheit betrachtet werden, da sie in einer der exklusivsten und privilegiertesten Wohngegenden liegt, die an großen Stadterneuerungsprojekten beteiligt ist.
Die Innenräume bieten viel Raum für individuelle Gestaltung und die herrliche Terrasse bietet von morgens bis abends einen unvergleichlichen Meerblick – ein idealer Ort, um gesellige Momente im Freien zu genießen oder in der Sonne zu entspannen.
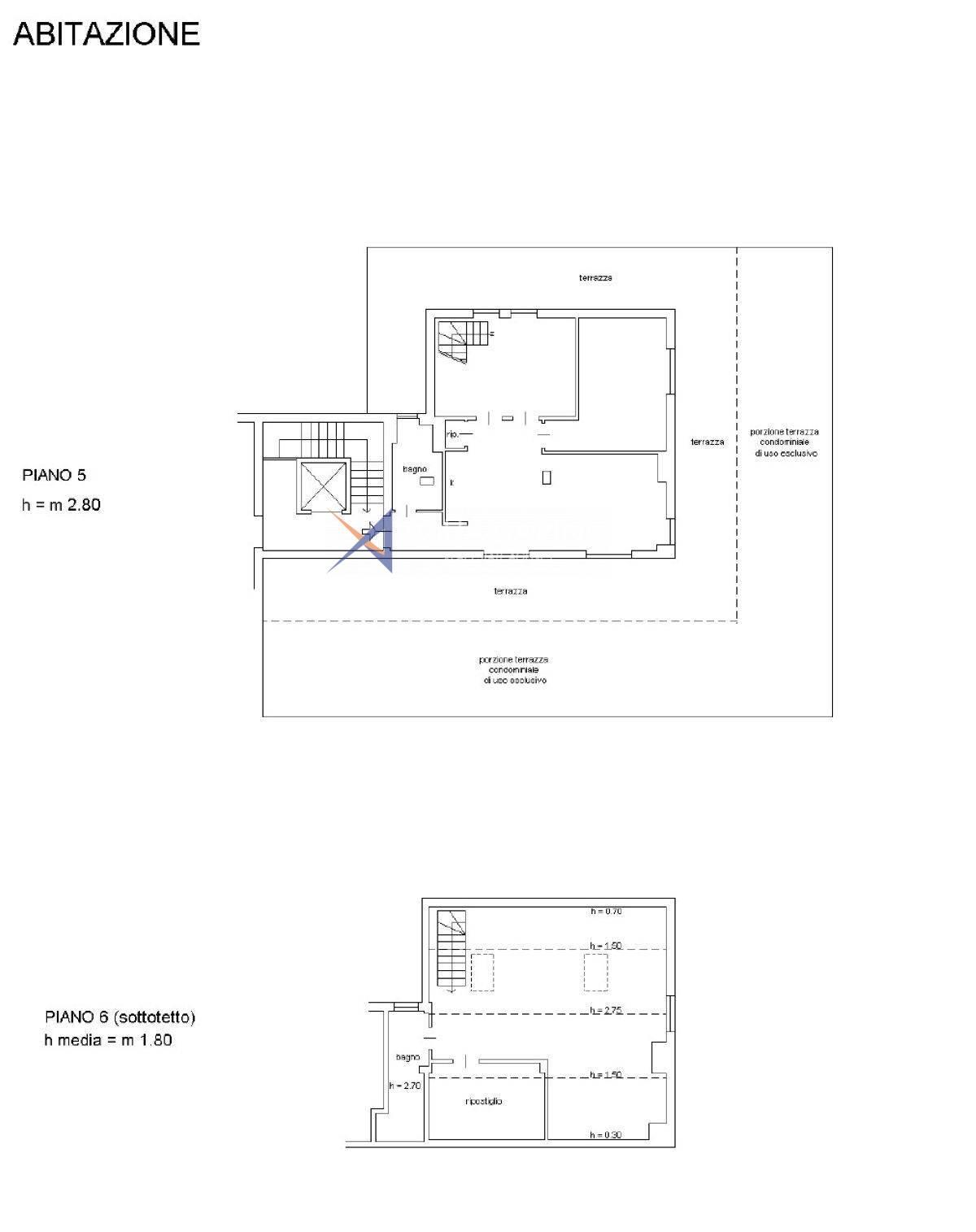
Die Wohnung erstreckt sich über zwei Ebenen, im fünften und sechsten Stock, ist bequem mit dem Aufzug erreichbar und ist derzeit wie folgt aufgeteilt: Eingang, der zum sehr hellen Wohnzimmer mit offener Küche, Badezimmer mit Dusche, zwei Schlafzimmern, Abstellraum, großer umlaufender Terrasse und Treppe führt, die in die obere Etage führt, wo uns ein einziges „offenes" Dachzimmer, ein weiterer Abstellraum und ein Badezimmer mit Fenster und Badewanne willkommen heißen.
Abgerundet wird das Anwesen durch einen Keller und eine praktische Einzelgarage.
Die Heizung ist autonom und die Eigentumswohnungsgebühren sind sehr niedrig.
Eine ideale Wohnlösung für Familien, um unvergessliche Ferien zu verbringen oder für diejenigen, die Zimmer für Gäste oder zum Arbeiten haben möchten.
Ventimiglia, wir bieten ein wunderschönes Penthouse mit einer großen Terrasse von etwa 100 Quadratmetern zum Verkauf an, die einen bezaubernden Meerblick bietet, nur wenige Schritte von den Stränden, der Promenade und dem Radweg entfernt.
Diese Immobilie kann als einmalige Gelegenheit betrachtet werden, da sie in einer der exklusivsten und privilegiertesten Wohngegenden liegt, die an großen Stadterneuerungsprojekten beteiligt ist.
Die Innenräume bieten viel Raum für individuelle Gestaltung und die herrliche Terrasse bietet von morgens bis abends einen unvergleichlichen Meerblick – ein idealer Ort, um gesellige Momente im Freien zu genießen oder in der Sonne zu entspannen.
Die Wohnung erstreckt sich über zwei Ebenen, im fünften und sechsten Stock, ist bequem mit dem Aufzug erreichbar und ist derzeit wie folgt aufgeteilt: Eingang, der zum sehr hellen Wohnzimmer mit offener Küche, Badezimmer mit Dusche, zwei Schlafzimmern, Abstellraum, großer umlaufender Terrasse und Treppe führt, die in die obere Etage führt, wo uns ein einziges „offenes" Dachzimmer, ein weiterer Abstellraum und ein Badezimmer mit Fenster und Badewanne willkommen heißen.
Abgerundet wird das Anwesen durch einen Keller und eine praktische Einzelgarage.
Die Heizung ist autonom und die Eigentumswohnungsgebühren sind sehr niedrig.
Eine ideale Wohnlösung für Familien, um unvergessliche Ferien zu verbringen oder für diejenigen, die Zimmer für Gäste oder zum Arbeiten haben möchten.
- Bezug: 13943
- Preis: € 480.000
- Meerblick
- Heizung: autonom
- Auftauchen: qm 107
- Räume: 3
- Einheimische: 6
- Boden: Auf zwei Ebenen
- Gesamtgeschosse: 6
- Belichtung: SÜDEN/OSTEN/WESTEN
- Eigentumswohnungsgebühren: 95 €/Monat
- Schlafzimmer: 3
- QM: 107
- Badezimmer: 2
€ 480.000
Aquamarina Real Estate Agency
via Vittorio Emanuele, 30218012 Bordighera (IM)
Telefon: +39 0184 26.16.87
Mobiltelefon: +39 328 83.65.167
E-mail: info@aquamarina.email ANRUFEN TERMIN VEREINBAREN



