Sanremo-Wohnung zu verkaufen
Objekt-ID: 7384
Sanremo-Wohnung mit Meerblick zu verkaufen.
Die Wohnung befindet sich in der obersten Etage mit Aufzug eines gepflegten Gebäudes in unmittelbarer Nähe des Zentrums und des Meeres und wurde einer kompletten Renovierung unterzogen, bei der ein Eingang und ein großes Wohnzimmer mit Blick auf die Terrasse mit Meerblick geschaffen wurden und Ausrichtung nach Süden, Küche, drei Schlafzimmer und zwei Badezimmer.
Die Anfrage bezieht sich auf den aktuellen Stand.
Möglichkeit zum Kauf einer Garage im Gebäude.
Keller.
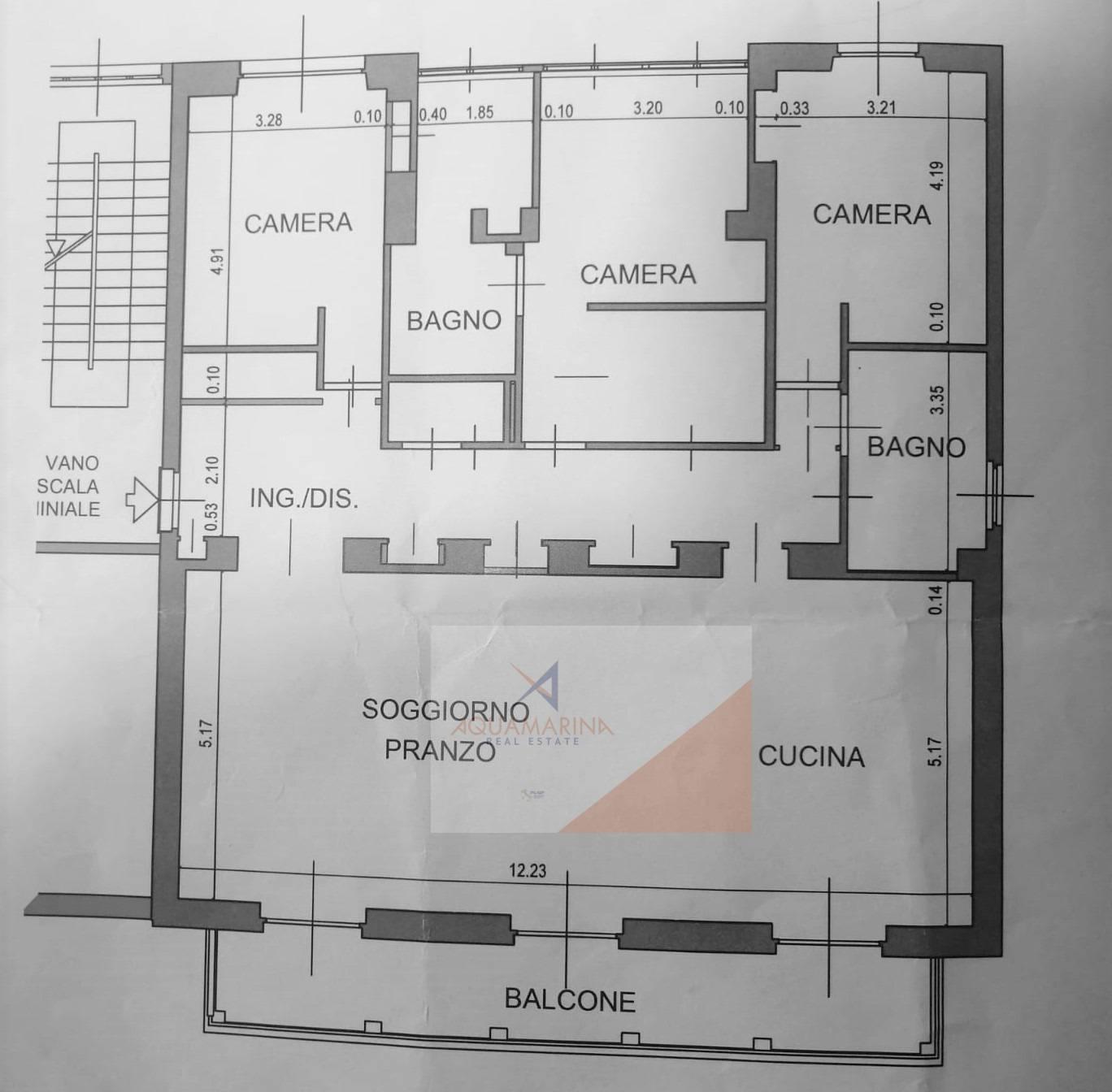
Sanremo-Wohnung mit Meerblick zu verkaufen.
Die Wohnung befindet sich in der obersten Etage mit Aufzug eines gepflegten Gebäudes in unmittelbarer Nähe des Zentrums und des Meeres und wurde einer kompletten Renovierung unterzogen, bei der ein Eingang und ein großes Wohnzimmer mit Blick auf die Terrasse mit Meerblick geschaffen wurden und Ausrichtung nach Süden, Küche, drei Schlafzimmer und zwei Badezimmer.
Die Anfrage bezieht sich auf den aktuellen Stand.
Möglichkeit zum Kauf einer Garage im Gebäude.
Keller.
- Bezug: 7384
- Preis: € 620.000
- Meerblick
- Heizung: autonom
- Auftauchen: qm 180
- Räume: 3
- Einheimische: 4
- Boden: Zuletzt
- Belichtung: Süd
- Schlafzimmer: 3
- QM: 180
- Badezimmer: 2
€ 620.000

18012 Bordighera (IM)
Telefon: +39 0184 26.16.87
Mobiltelefon: +39 328 83.65.167
E-mail: info@aquamarina.email ANRUFEN TERMIN VEREINBAREN