Sanremo, Villa mit Meerblick
Objekt-ID: 13788
Reduzierter Preis
Sanremo, in einer ruhigen Umgebung, nur wenige Kilometer vom Zentrum und den Stränden entfernt, bieten wir eine charmante Villa mit freiem Blick auf das Meer zum Verkauf an.
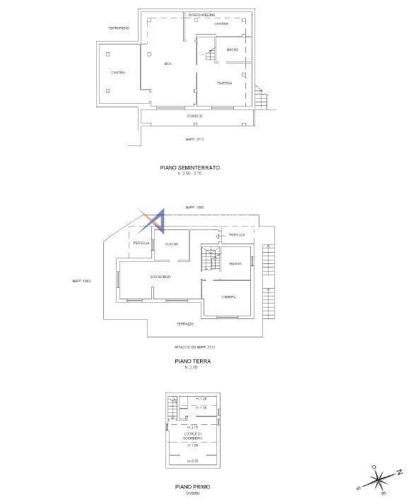
Die Villa aus den frühen Neunzigerjahren befindet sich in gutem Zustand und erfordert einige Wartungsarbeiten. Sie erstreckt sich über drei Ebenen mit einer Gesamtfläche von 200 m² zwischen Wohnhaus und Lager und ist wie folgt aufgeteilt:
im Erdgeschoss: großes Lagerhaus, das in ein Wohnhaus umgewandelt werden kann, Badezimmer, Keller und Abstellraum, der über eine Innentreppe, eine Veranda und einen großen Innenhof mit der Hauptwohnung verbunden ist;
im ersten Stock: großes Wohnzimmer mit Kamin, Küche, großes Schlafzimmer mit Doppelbett und Terrasse mit freiem Blick;
im Dachgeschoss: großes Schlafzimmer und Badezimmer.
Das Anwesen umfasst: Grundstücke, teilweise Olivenhaine, von ca. 3000 m², ein großes, vom Grundstück getrenntes Lagerhaus von 38 m² und zahlreiche nicht überdachte Parkplätze.
Sanremo, in einer ruhigen Umgebung, nur wenige Kilometer vom Zentrum und den Stränden entfernt, bieten wir eine charmante Villa mit freiem Blick auf das Meer zum Verkauf an.
Die Villa aus den frühen Neunzigerjahren befindet sich in gutem Zustand und erfordert einige Wartungsarbeiten. Sie erstreckt sich über drei Ebenen mit einer Gesamtfläche von 200 m² zwischen Wohnhaus und Lager und ist wie folgt aufgeteilt:
im Erdgeschoss: großes Lagerhaus, das in ein Wohnhaus umgewandelt werden kann, Badezimmer, Keller und Abstellraum, der über eine Innentreppe, eine Veranda und einen großen Innenhof mit der Hauptwohnung verbunden ist;
im ersten Stock: großes Wohnzimmer mit Kamin, Küche, großes Schlafzimmer mit Doppelbett und Terrasse mit freiem Blick;
im Dachgeschoss: großes Schlafzimmer und Badezimmer.
Das Anwesen umfasst: Grundstücke, teilweise Olivenhaine, von ca. 3000 m², ein großes, vom Grundstück getrenntes Lagerhaus von 38 m² und zahlreiche nicht überdachte Parkplätze.
- Bezug: 13788
- Preis: € 360.000 handhabbar
- Meerblick
- Heizung: autonom
- Auftauchen: qm 200
- Räume: 3
- Einheimische: 3
- Entfernung vom Meer: Meter 4000
- Boden: Erdgeschoss
- Gesamtgeschosse: 3
- Schlafzimmer: 3
- QM: 200
- Badezimmer: 3
€ 360.000

18012 Bordighera (IM)
Telefon: +39 0184 26.16.87
Mobiltelefon: +39 328 83.65.167
E-mail: info@aquamarina.email ANRUFEN TERMIN VEREINBAREN