Sanremo Seafront Apartment
Objekt-ID: 14046
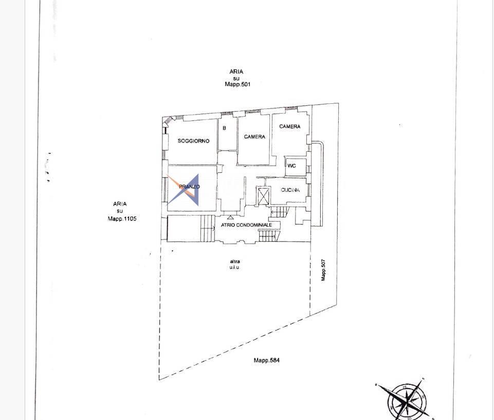
Sanremo: Wohnung mit Blick aufs Meer und den Radweg. Wir verkaufen eine repräsentative, renovierte Wohnung am Corso Orazio Raimondo mit Blick aufs Meer, den Radweg und Porto Sole. Wir befinden uns in einer der renommiertesten Gegenden von Sanremo, direkt im Zentrum und mit allen Annehmlichkeiten in unmittelbarer Nähe, sodass Sie keine öffentlichen Verkehrsmittel benötigen. Die Wohnung befindet sich in einem stattlichen, eleganten und repräsentativen Gebäude mit Video-Gegensprechanlage, elektrischem Tor und einem durch eine Schranke abgeschirmten Gemeinschaftsparkplatz. Die Fassadensanierung wurde gerade abgeschlossen. Die Wohnung befindet sich im Hochparterre und verfügt über zwei Eingänge, sodass sie in zwei Wohnungen umgewandelt werden kann. Die Innenausstattung ist hochwertig, mit Marmor- und Parkettböden, und die Außenfenster bestehen aus doppelt verglastem Aluminium. Der Eingang öffnet sich zu einem großen Flur, einem Wohnzimmer mit Doppeltüren, einem weiteren großen Wohnzimmer mit Erkerfenstern, einem Badezimmer mit Fenster und Badewanne sowie einem Schlafzimmer. Weiter geht es zu einem weiteren Flur mit einem großen Doppelschrank, einem großen Schlafzimmer mit Zugang zum Außenbalkon, einem Badezimmer mit Fenster und Dusche, einer Wohnküche mit Glastüren zum Innenhofbalkon und einer Waschküche auf dem Balkon, die in ein drittes Badezimmer umgewandelt werden kann. Die Wohnung ist nach Süden ausgerichtet und bietet viel Tageslicht und Meerblick. Sie verfügt über eine unabhängige Heizkörperheizung und eine Klimaanlage für den Sommer. Auf Anfrage stehen außerdem ein Keller und ein Parkplatz (separat erhältlich) zur Verfügung.
Sanremo: Wohnung mit Blick aufs Meer und den Radweg. Wir verkaufen eine repräsentative, renovierte Wohnung am Corso Orazio Raimondo mit Blick aufs Meer, den Radweg und Porto Sole. Wir befinden uns in einer der renommiertesten Gegenden von Sanremo, direkt im Zentrum und mit allen Annehmlichkeiten in unmittelbarer Nähe, sodass Sie keine öffentlichen Verkehrsmittel benötigen. Die Wohnung befindet sich in einem stattlichen, eleganten und repräsentativen Gebäude mit Video-Gegensprechanlage, elektrischem Tor und einem durch eine Schranke abgeschirmten Gemeinschaftsparkplatz. Die Fassadensanierung wurde gerade abgeschlossen. Die Wohnung befindet sich im Hochparterre und verfügt über zwei Eingänge, sodass sie in zwei Wohnungen umgewandelt werden kann. Die Innenausstattung ist hochwertig, mit Marmor- und Parkettböden, und die Außenfenster bestehen aus doppelt verglastem Aluminium. Der Eingang öffnet sich zu einem großen Flur, einem Wohnzimmer mit Doppeltüren, einem weiteren großen Wohnzimmer mit Erkerfenstern, einem Badezimmer mit Fenster und Badewanne sowie einem Schlafzimmer. Weiter geht es zu einem weiteren Flur mit einem großen Doppelschrank, einem großen Schlafzimmer mit Zugang zum Außenbalkon, einem Badezimmer mit Fenster und Dusche, einer Wohnküche mit Glastüren zum Innenhofbalkon und einer Waschküche auf dem Balkon, die in ein drittes Badezimmer umgewandelt werden kann. Die Wohnung ist nach Süden ausgerichtet und bietet viel Tageslicht und Meerblick. Sie verfügt über eine unabhängige Heizkörperheizung und eine Klimaanlage für den Sommer. Auf Anfrage stehen außerdem ein Keller und ein Parkplatz (separat erhältlich) zur Verfügung.
- Schlafzimmer: 3
- QM: 152
- Badezimmer: 3
€ 720.000
Aquamarina Real Estate Agency
via Vittorio Emanuele, 30218012 Bordighera (IM)
Telefon: +39 0184 26.16.87
Mobiltelefon: +39 328 83.65.167
E-mail: info@aquamarina.email ANRUFEN TERMIN VEREINBAREN



