Bussana, Neubauwohnung
Objekt-ID: 13840
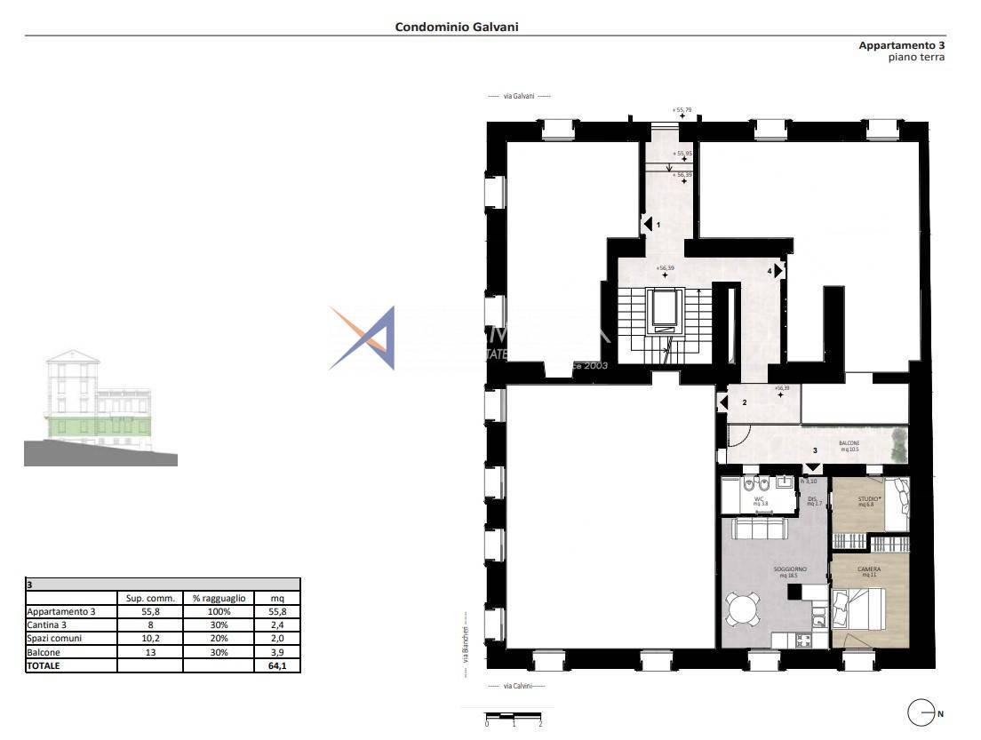
Sanremo, in der ruhigen und charakteristischen Gegend von Bussana, Zweizimmerwohnung zum Verkauf im Erdgeschoss, in einer komplett renovierten und isolierten Wohnanlage, die auf maximalen Komfort und Sicherheit ausgelegt ist.
Die Wohnung setzt sich wie folgt zusammen: eingang zu einem großen und hellen Wohnbereich, Schlafzimmer mit Doppelbett, geräumiges Arbeitszimmer, in dem ein Einzelbett untergebracht werden kann, und Badezimmer mit Duschkabine. Das nach den modernsten Anti-Erdbeben-Vorschriften restaurierte Gebäude stellt eine ideale Wahl für diejenigen dar, die ein sicheres und energieeffizientes Zuhause suchen.
Die Wohnung verfügt über einen privaten Innenhof am Eingang, der sich perfekt zum Genießen von Momenten der Entspannung im Freien eignet, und einen privaten Keller für komfortablen zusätzlichen Platz.
Das Innere der Wohnung bietet die Möglichkeit, Bodenbeläge und Verkleidungen individuell anzupassen, wobei eine große Auswahl an Mustern bereits vor Ort verfügbar ist.
Die unabhängige Fußbodenheizung mit Hydronik-Wärmepumpe garantiert optimalen Komfort zu jeder Jahreszeit, während die Außenfenster aus schlagfestem Hart-PVC mit Stahlverstärkung und dem SCHUCO AS 82-System mit 7 Isolierkammern eine hervorragende thermische und akustische Isolierung gewährleisten.
Die Eigentumswohnung „Galvani" ist außerdem mit Photovoltaikpaneelen ausgestattet, die die Energieunabhängigkeit der Gemeinschaftsbereiche, einschließlich des Aufzugs und der Gemeinschaftsräume, gewährleisten, die Verwaltungskosten senken und zur ökologischen Nachhaltigkeit beitragen.
Eine unumgängliche Gelegenheit, in einer ruhigen und gut ausgestatteten Gegend mit allen modernen Annehmlichkeiten und hoher Bauqualität zu wohnen.
Kontaktieren Sie uns für weitere Informationen und um einen Besuch zu buchen!
Sanremo, in der ruhigen und charakteristischen Gegend von Bussana, Zweizimmerwohnung zum Verkauf im Erdgeschoss, in einer komplett renovierten und isolierten Wohnanlage, die auf maximalen Komfort und Sicherheit ausgelegt ist.
Die Wohnung setzt sich wie folgt zusammen: eingang zu einem großen und hellen Wohnbereich, Schlafzimmer mit Doppelbett, geräumiges Arbeitszimmer, in dem ein Einzelbett untergebracht werden kann, und Badezimmer mit Duschkabine. Das nach den modernsten Anti-Erdbeben-Vorschriften restaurierte Gebäude stellt eine ideale Wahl für diejenigen dar, die ein sicheres und energieeffizientes Zuhause suchen.
Die Wohnung verfügt über einen privaten Innenhof am Eingang, der sich perfekt zum Genießen von Momenten der Entspannung im Freien eignet, und einen privaten Keller für komfortablen zusätzlichen Platz.
Das Innere der Wohnung bietet die Möglichkeit, Bodenbeläge und Verkleidungen individuell anzupassen, wobei eine große Auswahl an Mustern bereits vor Ort verfügbar ist.
Die unabhängige Fußbodenheizung mit Hydronik-Wärmepumpe garantiert optimalen Komfort zu jeder Jahreszeit, während die Außenfenster aus schlagfestem Hart-PVC mit Stahlverstärkung und dem SCHUCO AS 82-System mit 7 Isolierkammern eine hervorragende thermische und akustische Isolierung gewährleisten.
Die Eigentumswohnung „Galvani" ist außerdem mit Photovoltaikpaneelen ausgestattet, die die Energieunabhängigkeit der Gemeinschaftsbereiche, einschließlich des Aufzugs und der Gemeinschaftsräume, gewährleisten, die Verwaltungskosten senken und zur ökologischen Nachhaltigkeit beitragen.
Eine unumgängliche Gelegenheit, in einer ruhigen und gut ausgestatteten Gegend mit allen modernen Annehmlichkeiten und hoher Bauqualität zu wohnen.
Kontaktieren Sie uns für weitere Informationen und um einen Besuch zu buchen!
- Bezug: 13840
- Preis: € 257.000
- Heizung: autonom
- Auftauchen: qm 55
- Räume: 1
- Einheimische: 2
- Entfernung vom Meer: Meter 100
- Boden: Erdgeschoss
- Gesamtgeschosse: 4
- Lokalität: Bussana
- Schlafzimmer: 1
- QM: 55
- Badezimmer: 1
€ 257.000
Aquamarina Real Estate Agency
via Vittorio Emanuele, 30218012 Bordighera (IM)
Telefon: +39 0184 26.16.87
Mobiltelefon: +39 328 83.65.167
E-mail: info@aquamarina.email ANRUFEN TERMIN VEREINBAREN



