Apartment direkt am Meer in Santo Stefano al Mare!
Objekt-ID: 13998
Wir bieten exklusiv in Santo Stefano al Mare im renommierten Touristenhafen Marina degli Aregai einen Verkauf an.
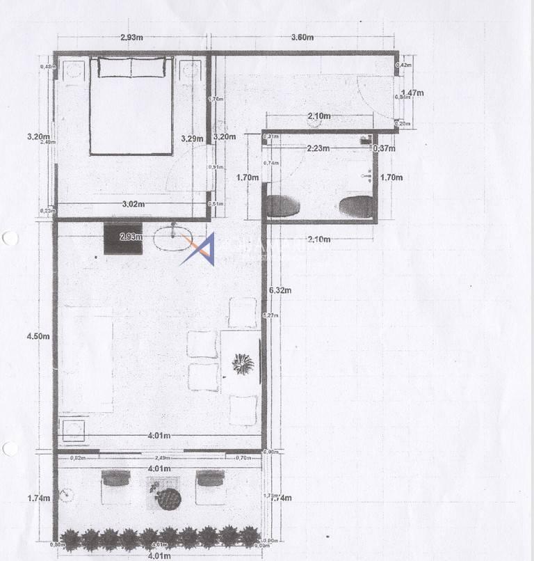
Diese wunderbare 43 Quadratmeter große Wohnung ist per Kaufvertrag erhältlich und befindet sich in ausgezeichnetem Zustand.
Das 1997 erbaute Anwesen besteht aus einer geräumigen Eingangshalle, einem sehr hellen Schlafzimmer, einem funktionalen Badezimmer und einem Wohnbereich.
Wohnzimmer mit Küche und stilvoll eingerichtetem Wohnzimmer mit Zugang zur Terrasse mit Meerblick.
Die Südausrichtung garantiert den ganzen Tag über natürliche Helligkeit.
Darüber hinaus verfügt die Wohnung über einen nicht überdachten Parkplatz und eine unabhängige Heizung für mehr Komfort in den Wintermonaten.
Das Objekt ist komplett möbliert und bezugsfertig.
Eine einmalige Gelegenheit für alle, die ein modernes und komfortables Apartment in einer der schönsten Gegenden der ligurischen Küste suchen.
Kontaktieren Sie uns, wir sind sieben Tage die Woche für Sie da.
Wir bieten exklusiv in Santo Stefano al Mare im renommierten Touristenhafen Marina degli Aregai einen Verkauf an.
Diese wunderbare 43 Quadratmeter große Wohnung ist per Kaufvertrag erhältlich und befindet sich in ausgezeichnetem Zustand.
Das 1997 erbaute Anwesen besteht aus einer geräumigen Eingangshalle, einem sehr hellen Schlafzimmer, einem funktionalen Badezimmer und einem Wohnbereich.
Wohnzimmer mit Küche und stilvoll eingerichtetem Wohnzimmer mit Zugang zur Terrasse mit Meerblick.
Die Südausrichtung garantiert den ganzen Tag über natürliche Helligkeit.
Darüber hinaus verfügt die Wohnung über einen nicht überdachten Parkplatz und eine unabhängige Heizung für mehr Komfort in den Wintermonaten.
Das Objekt ist komplett möbliert und bezugsfertig.
Eine einmalige Gelegenheit für alle, die ein modernes und komfortables Apartment in einer der schönsten Gegenden der ligurischen Küste suchen.
Kontaktieren Sie uns, wir sind sieben Tage die Woche für Sie da.
- Bezug: 13998
- Preis: € 290.000
- Meerblick
- Heizung: autonom
- Auftauchen: qm 43
- Räume: 1
- Einheimische: 2
- Entfernung vom Meer: Meter 1
- Boden: Auf zwei Ebenen
- Belichtung: Süden
- Eigentumswohnungsgebühren: 274 €/Monat
- Schlafzimmer: 1
- QM: 43
- Badezimmer: 1
€ 290.000

18012 Bordighera (IM)
Telefon: +39 0184 26.16.87
Mobiltelefon: +39 328 83.65.167
E-mail: info@aquamarina.email ANRUFEN TERMIN VEREINBAREN