Wohnung in Vallecrosia zu verkaufen
                            
							
							Objekt-ID: 7499
                            							Reduzierter Preis
								
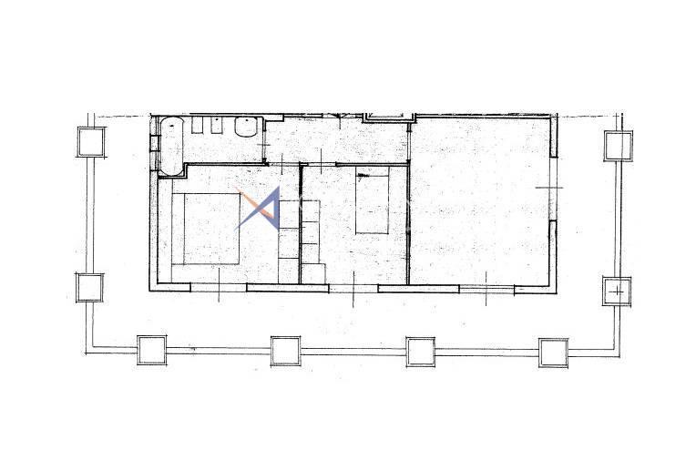
Vallecrosia, wir bieten zum Verkauf eine schöne Dreizimmerwohnung in einem Gebäude in gutem Wartungszustand an.
Die ca. 70 m² große Wohnung befindet sich im zweiten Stock und ist mit einem Aufzug erreichbar.
Das Anwesen mit Süd-West-Nord-Ausrichtung setzt sich wie folgt zusammen: Eingang, Wohnzimmer mit Kochnische, zwei Schlafzimmer und Badezimmer.
Ein großer Balkon, von dem Sie einen schönen Blick auf das Meer und die Hügel genießen können, umgibt das Anwesen und ist von allen Zimmern aus zugänglich.
Das Anwesen umfasst einen privaten Keller und einen privaten, nicht überdachten Parkplatz im darunter liegenden Innenhof.
                                
                                
									
                            
		
		
		
		
		
		
		
		
		
		
		
		
		
		
		
		
		
		                        
                    Vallecrosia, wir bieten zum Verkauf eine schöne Dreizimmerwohnung in einem Gebäude in gutem Wartungszustand an.
Die ca. 70 m² große Wohnung befindet sich im zweiten Stock und ist mit einem Aufzug erreichbar.
Das Anwesen mit Süd-West-Nord-Ausrichtung setzt sich wie folgt zusammen: Eingang, Wohnzimmer mit Kochnische, zwei Schlafzimmer und Badezimmer.
Ein großer Balkon, von dem Sie einen schönen Blick auf das Meer und die Hügel genießen können, umgibt das Anwesen und ist von allen Zimmern aus zugänglich.
Das Anwesen umfasst einen privaten Keller und einen privaten, nicht überdachten Parkplatz im darunter liegenden Innenhof.
- Bezug: 7499
- Preis: € 210.000
- Meerblick
- Heizung: Stundenzähler
- Auftauchen: qm 70
- Räume: 2
- Einheimische: 3
- Entfernung vom Meer: Meter 850
- Boden: 2
- Belichtung: Südwesten
- Eigentumswohnungsgebühren: 110 €/Monat
- Schlafzimmer: 2
- QM: 70
- Badezimmer: 1
€ 210.000
																					
                         Aquamarina Real Estate Agency
                            via Vittorio Emanuele, 302
                            
                            Aquamarina Real Estate Agency
                            via Vittorio Emanuele, 30218012 Bordighera (IM)
Telefon: +39 0184 26.16.87
Mobiltelefon: +39 328 83.65.167
E-mail: info@aquamarina.email ANRUFEN TERMIN VEREINBAREN
 
                     
                         
                         
									 
									 
									 
									 
									 
									 
									 
									 
									 
									 
									 
									 
									 
									 
									 
									 
									 
									


